Back to Site

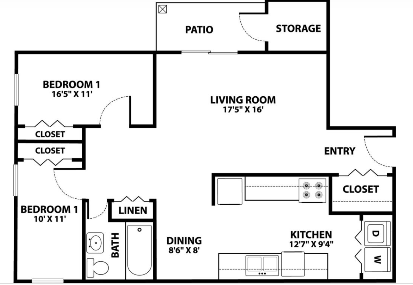
Three Bedroom

$1,264

  • 1,139

    Square Foot
  • 3 Bedroom

  • 2 Bath

Three bedroom 2 bathroom floor plan